ECO-SHELTER
ECO-SHELTER is a prototype for small-scale timber architecture developed through participatory construction and passive design principles. Built on Keio University’s Hiyoshi Campus as part of the Hiyoshi Campus Northern Area Revitalisation Project, it will remain in place until August 2026 before being dismantled and relocated.
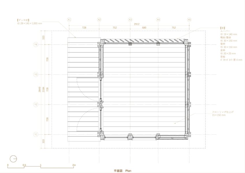
The prototype features four distinct façades designed to adapt to varying climatic conditions and demonstrates how non-specialists can engage in building through lightweight timber construction. During a workshop in August 2025, 110 students participated under professional guidance to complete the structure within one month.
Most materials were recycled from the Hiyoshi Pavilion (2023–2025) and Minamisanriku cedar from Keio no Mori in Miyagi Prefecture. ECO-SHELTER will continue to serve as an educational platform for studying circular timber use, participatory construction, and campus design through exhibitions and guided tours.
Structural Consultants: Enshu Structural Consultants
Contractors: Haseman Co., Ltd., Students at Keio Univ.
ECO-SHELTERは、パッシブデザイン手法を用いた参加型施工による小規模木造建築のプロトタイプである。2022年度から続く日吉キャンパス北部エリア活性化プロジェクトの一貫として、慶應義塾大学日吉キャンパス第5校舎跡地に建設された。2026年8月までの1年間設置され、学生への啓発活動や室内の環境計測実験に使用された後、別の場所へ解体・移築される予定である。
本プロトタイプは、パッシブデザイン手法により構成された東西南北それぞれ異なる立面デザインにより、あらゆる気候に対応可能な空間となっている。また地面に設置したH鋼の上に、地組したフレームを載せ、それらを事前に制作した構造用パネルで固定することで躯体が組みあがるという軽量木造構法により、非専門家による参加型施工を実現した。2025年8月に行われた建設WSでは、施工会社の現場監督指導の下、延べ110名の学生が参加し、1か月間でプロトタイプが完成した。
ほとんどの材料は、2023年3月に建設し2025年3月に解体された「日吉パビリオン」からのリサイクル材と、宮城県南三陸町にある「慶應の森」で採れた南三陸杉からなっている。そのためこのプロトタイプは今後、木材の循環型利用やキャンパス計画に関して学ぶための教材としても活用される。
構造設計補助 円酒構造設計
施工 (株)長谷萬, 慶應義塾大学 学生
- Yokohama, Kanagawa, Japan
- Architecture
- Jorge Almazan + Studiolab ([Basic Designs] K. Matsukawa, S. Shimizu, D. Sumida, T. Umezawa [Design Development] A. Braiotta, S. Shimizu, J. G. Yagual, A. Dunia, C. Poolthaveetham, S. Endo [Design Details] S. Shimizu, D. Sumida, M. Tadano, T. Tada)